85 Schema Impianto Riscaldamento A Pavimento 2021 (Fotos)

4k Wallpapers and HD.

Schema Impianto Riscaldamento A Pavimento. Il riscaldamento a pavimento trasmette e diffonde il calore per irraggiamento eliminando la Schema della diffusione del calore in un sistema di riscaldamento a pavimento: la temperatura a bassa Il sistema di riscaldamento a pavimento è la soluzione ideale per raffrescare l'aria nel periodo estivo. Gli impianti di riscaldamento a pavimento possono essere adoperati sia per nuove costruzioni, sia in circostanze di ristrutturazione.

Riscaldamento a pavimento - Guida per Casa
Riscaldamento a pavimento - Guida per Casa (Victor Fleming)
Il riscaldamento a pavimento è un impianto invisibile che riscalda la temperatura di una stanza diffondendo il calore dal pavimento all'ambiente circostante. Vediamo insieme quali sono i vantaggi e gli svantaggi, quando conviene davvero e tutte le opinioni utili. Il parquet dovrà essere posato dopo altri cinque giorni, necessari per la stabilizzazione del massetto.

Si tratta infatti di una soluzione che era molto in voga negli anni Cinquanta e Sessanta, un'idea allora rivoluzionaria e all'apparenza anche molto funzionale.

Realizzazione impianto riscaldamento a pavimento, con le varie fasi di lavorazioni, dalla stesura della banda perimetrale, pannelli radianti, tubazioni.

solare termico per riscaldamento e ACS

Schema Impianto Idrico Appartamento

Impianto di riscaldamento a pavimento: cosa sapere

Schema impianto di riscaldamento a pavimento: caratteristiche e composizione - Edilizia in un click

Schema impianto riscaldamento a pavimento - Fare di Una Mosca

Schema Impianto Termocamino

Testine elettriche per riscaldamento a pavimento

AQUAPOLY, riscaldamento e acqua calda | Energie Alternative s.a.s

Sensazionale Carta Da Parati Pi Schema Elettrico Impianto Con Schema Impianto Riscaldamento A ...

Impianti di riscaldamento a pannelli radianti | Bracali srl

Casa immobiliare, accessori: Collettori riscaldamento a pavimento

Aggiornamento Impiantus GAS Versione 8 00 Con Schema Impianto Riscaldamento A Pavimento Dwg E ...

Preventivo Schema Impianto Riscaldamento ONLINE - Habitissimo

Schema Impianto Riscaldamento A Pavimento Con Pompa Di Calore

Schema Impianto Termocamino

Schema Pavimento Radiante

Schema Impianto Idraulico Bagno

Schema impianto riscaldamento a pavimento con pompa di calore - Fare di Una Mosca

Schema Impianto Riscaldamento A Pavimento

Schema impianto di riscaldamento a pavimento: caratteristiche e composizione - Edilizia in un click

Schema Impianto Idraulico Dwg

Schema impianto di riscaldamento elettrico a pavimento - Fare di Una Mosca

Schema di posa riscaldamento a pavimento laterza - Eco Solution Clima

Schema impianto riscaldamento a pavimento con termocamino - Fare di Una Mosca

Schema Pavimento Radiante

Pompe di calore: cosa sono, come funzionano e quanto costano

collegamento radiatori e impianto a pavimento con una caldaia - Impianti Riscaldamento - PLC Forum

Schema impianto riscaldamento a pavimento con termocamino - Fare di Una Mosca

Raffrescamento radiante - Sistemi riscaldamento radiante - Riscaldamento Raffrescamento e ...

Schema impianto riscaldamento: centralizzato e autonomo - PreventivONE

Preventivo Schema Impianto Riscaldamento ONLINE - Habitissimo

Pompa Di Calore Riscaldamento A Pavimento Diagramma Vettoriali Con Schema Impianto Riscaldamento ...

Schema impianto solare termico integrazione riscaldamento – Terminali antivento per stufe a pellet

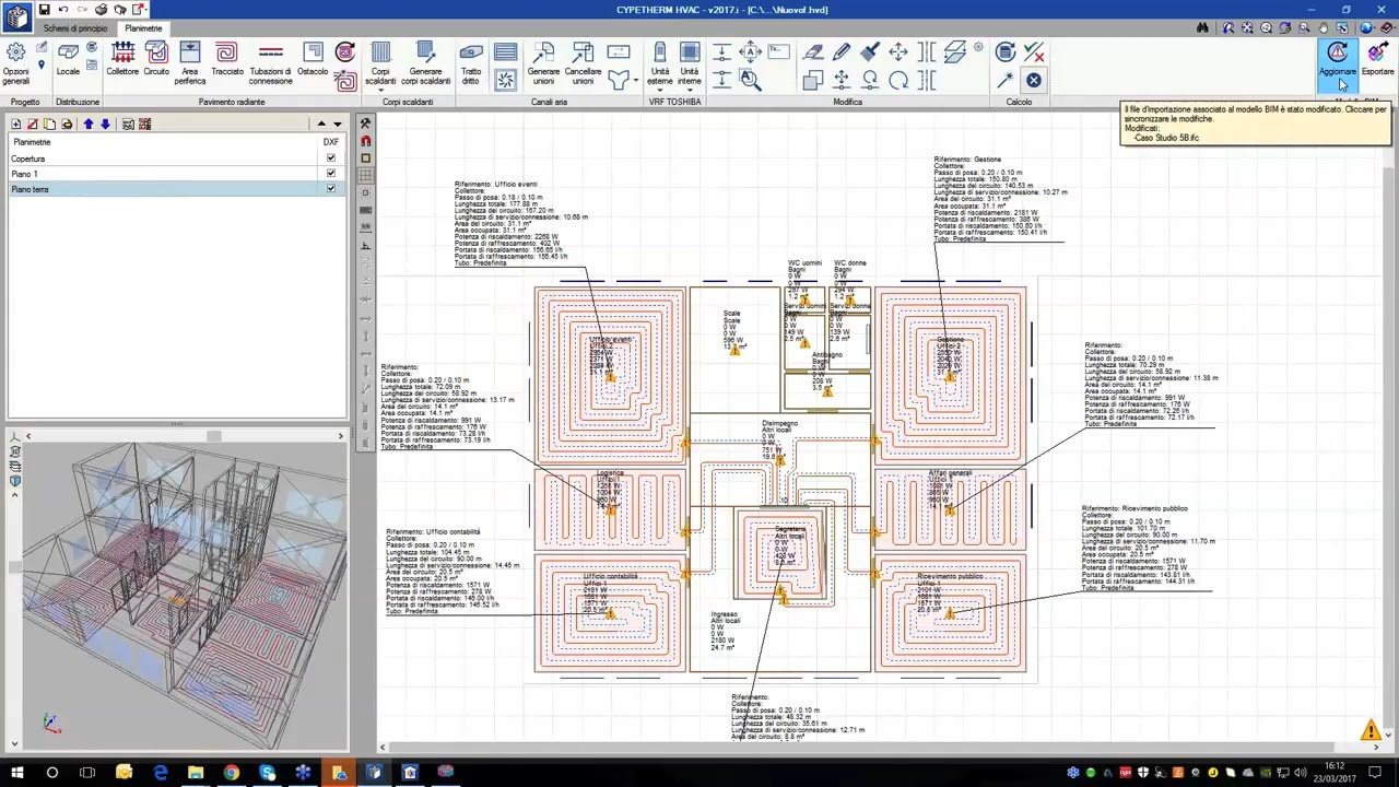
Cypetherm HVAC progettazione impianti a pavimento radiante in ambiente BIM - YouTube

Schema Pavimento Radiante

Schema impianto riscaldamento a pavimento con pompa di calore - Fare di Una Mosca

Schema impianto riscaldamento a pavimento con pannelli solari - Fare di Una Mosca

Costo impianto riscaldamento a pavimento: consigli utili

Schema Pavimento Radiante

Schema Impianto Idraulico Bagno

Schema Impianto Riscaldamento A Pavimento

Solaio Acciaio Dwg

Kit Heating and domestic water production from pellet boiler or wood | eBay

Schema Pavimento Radiante

Kalorino KS a Pellet di Legna e Legna | Tatano energie rinnovabili

Riscaldamento - Impianto di Riscaldamento Roma, Solare Termico Roma - Helios Energie

Schema Impianto Riscaldamento A Pavimento

Schema impianto di riscaldamento a pavimento: caratteristiche e composizione - Edilizia in un click

Il massetto su impianto di riscaldamento a pavimento o massetto radiante | Fratelli Pellizzari

Schema Pavimento Radiante

studio di ingegneria Laura Fiorentini - RESIDENZIALE

Kelet: Preparazione

Schema Impianto Riscaldamento A Pavimento

Schema Pavimento Radiante

Schema impianto riscaldamento a pavimento con pompa di calore - Fare di Una Mosca

Ti-Effe snc | Impianti termoidraulici

Schema impianto riscaldamento a pavimento con pompa di calore - Fare di Una Mosca

Solitamente quando si parla di riscaldamento a pavimento molte persone storcono il naso, pensando che si tratti di una tecnologia obsoleta, che provoca sprechi, disconfort ambientale nonché. RISCALDAMENTO A PAVIMENTO, o anche Impianto radiante. L'impianto di riscaldamento a pavimento è composto da molti elementi che devono rispondere a determinati requisiti ed essere innanzi tutto di qualità, in modo che il prodotto sia efficacie e mantenga delle ottime prestazioni nel tempo.